Eigenschaften von Kunststoff-Nebeneingangstüren REHAU Smartline+ und REHAU SYNEGO AD
Sie können diese Art von Tür als Zugang zu Garten, Terrasse, Garage oder als Hintereingang zum Haus verwenden. Sie hat eine niedrige Aluminiumschwelle, um barrierefreien Zugang zu ermöglichen. Sie erfüllt auch die Funktion einer gängigen Eingangstür bei Familienhäusern, ist jedoch nicht für öffentliche Gebäude oder Mehrfamilienhäuser geeignet, in denen eine höhere Nutzungsfrequenz besteht. Diese Türen werden in einen nach innen öffnender Ausführung geliefert (dadurch unterscheiden sie sich von den Haupteingangstüren, die nach außen und nach innen geöffnet werden können). Von einer umgekehrten Montage der Tür mit nach außen öffnendem Flügel raten wir ab.Auf Lager und innerhalb weniger Tage lieferbar haben wir REHAU Smartline-Kunststoff-Nebeneingangstüren in den gängigsten Abmessungen. Sie werden standardmäßig mit Doppelverglasung geliefert. Wenn Sie eine Tür mit anderen Parametern (Scheibengröße, Farbe usw.) benötigen, verwenden Sie unseren Konfigurator. Wir werden die Tür für Sie nach Maß anfertigen. Die Lieferzeit beträgt in der Regel 4 bis 6 Wochen. Im Konfigurator können Sie zwei Profilsysteme auswählen – REHAU Smartline+ und REHAU SYNEGO AD, jeweils in der Ausführung „Klasik“ mit geradem Flügel.
Nebeneingangstüren verkaufen wir in zwei Profilsystemen
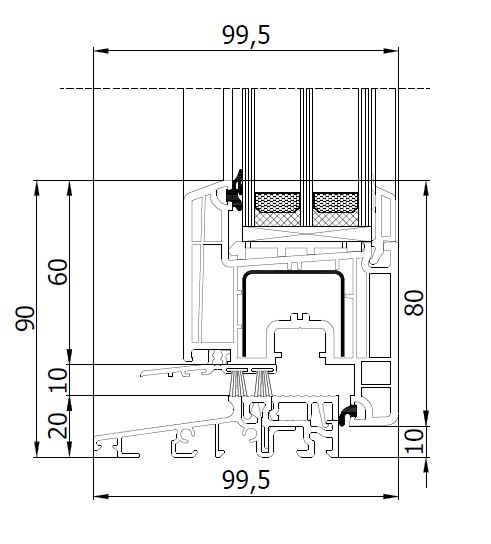
Profilsystem REHAU SMARTLINE+
Es handelt sich um ein 5-Kammer-Profilsystem der deutschen Hersteller Rehau AG + Co. Es bietet ein ausgezeichnetes Preis-Leistungs-Verhältnis. Standardmäßig wird die Nebeneingangstür REHAU Smartline+ mit einer Doppelverglasung (3 mm) geliefert.
Um die Wärmedämmeigenschaften beim Bau von Niedrigenergiehäusern zu erhöhen, können die Türen mit einem Dreifach-Isolierglas und einem warmen Rahmen versehen werden. Wählen Sie alles im Online-Konfigurator aus.
Die Gesamtwärmedurchlässigkeit von Ud ist bei der Nebeneingangstür REHAU Smartline+ folgt:
- Bei Doppelverglasung und Stahl-Distanzrahmen ist Ud=1,3 W/m²K.
- Beim Dreifachglas und dem Kunststoff-Distanzrahmen TGI ist U=d0,90 W/m²K.
Die Nebeneingangstür REHAU Smartline+ ist günstiger als die Haupteingangstür. Im Gegensatz zu den Rehau Smartline+ Haupteingangstüren wird bei ihrer Herstellung kein breiter Flügel verwendet, sie können nur nach innen geöffnet werden, sie haben 2 Balkonscharniere (die Haupttüren haben 3 Joker-Scharniere).

Nebeneingangstür REHAU Smartline+
- 5-Kammer-Profilsystem der deutschen Gesellschaft REHAU AG + Co.
- Nur nach innen öffnend.
- Vollumfängliche Beschläge der Winkhaus.
- Niedrige Aluminiumschwelle.
- Rahmentiefe 80 mm.
- Erhältlich in 29 Farben und Dekoren.
Profilsystem REHAU SYNEGO AD
Das Sechskammer-Profilsystem SYNEGO von der deutschen REHAU AG + Co. mit einer Bautiefe von 80 mm wird standardmäßig mit Dreifachverglasung geliefert. Gesamtwärmedurchgang Ud = 0,89 W/m²K. REHAU Nebeneingangstüren sind günstiger als REHAU Haupteingangstüren, im Gegensatz dazu haben sie 2 Balkontürbänder (Haustüren sind mit 3 Joker-Türbänder ausgestattet) und es werden Winkhaus easyLock Beschläge verwendet (Haustüren sind mit Winkhaus autoLock Beschläge ausgestattet).Nebeneingangstür REHAU SYNEGO AD
- 6-Kammer-Profilsystem SYNEGO von der deutschen REHAU AG + Co.
- Nur nach innen öffnend.
- Vollumfängliche Beschläge der EasyLock-Serie.
- Niedrige Aluminiumschwelle.
- Doppelseitiger Aluminiumgriff.
- Rahmentiefe 80 mm.
- Mit standardmäßiger Isolier-Dreifachverglasung.
- Erhältlich in 29 Farben und Dekoren.
Nebeneingangstüren sind in unserem Lager in Kuřim ausgestellt
Wenn Sie sich die Nebeneingangstüren REHAU Smartline+ und REHAU SYNEGO AD vor Bestellung anschauen möchten, können sie dies an unserem Firmensitz in Kuřim tun, wo sie ausgestellt sind. Im Lager sehen Sie:- Die Nebeneingangstüren REHAU Smartline+ sind beidseitig im Winchester-Dekor gehalten. Größtenteils sind sie voll und mit einem langen, schmalen Streifen aus Zierglas des Typs Rinde gefüllt..
- Nebeneingangstür REHAU SYNEGO AD in Grau mit Holzstruktur, fünf vollen Feldern und einem mit Klarglas verglasten Streifen.
Beschläge mit erhöhter Sicherheit
Die Kunststoff-Nebeneingangstüren sind mit Rundumbeschlägen des deutschen Herstellers Winkhaus (Serie easyLock) ausgestattet. Es handelt sich um ein Mehrpunktschloss mit 2 Exzenterwalzen und 2 Pilzkopfstiften, die den korrekten Druck des Flügels gegen den Rahmen über seine gesamte Höhe und die Dichtheit der Tür gewährleisten. Das Schloss wird mittels der Klinken aktiviert.
Zertifikate
HINWEIS bezüglich der Nebeneingangstür – Installation der Klinke und Schließen:
Nebeneingangstür und Balkontür sind mit beidseitiger Klinke mit Arretierklinke ausgestattet. Zum Schließen der Tür kommt es dadurch, dass diese „nach oben gezogen“ wird:- die Klinke muss vorher nach oben gezogen werden, damit die einzelnen Sicherheitspunkte des Umfangsbeschlages arretiert werden
- dann lässt sich die Klinke in eine waagerechte Lage bringen
- jetzt kann die Tür mit einem Schlüssel zugeschlossen werden


Klinken für beide Türseiten sind im Lieferumfang enthalten
Im Lieferumfang der Nebeneingangstür enthalten sind ein Einbauschloss mit 3 Schlüsseln und Aluminiumklinken mit Verriegelung für beide Seiten. Ein Austausch der Klinke gegen einen Kugelgriff ist nicht möglich (dies geht nur bei einer Haupteingangstür).
Zu weißen Türen liefern wir weiße Abdeckungen und Klinken, für Türen mit Dekor sind die Abdeckungen und Klinken dunkelbraun, im Falle von anthrazitfarbenem Dekor sind sie silberfarben. Wenn Sie eine andere Klinkenfarbe wünschen, verwenden Sie bitte den Konfigurator.



















